Beschrijving

Deze vrijstaande recreatiewoning is gelegen op vakantiepark ‘t Hooge Holt in Gramsbergen, Gramsbergen ligt in de gemeente Hardenberg in Overijssel.

Met een kavel eigen grond van ca. 298m ligt deze woning op een prachtige locatie aan de visvijver.

Vakantiepark 't Hooge Holt biedt diverse faciliteiten voor een ontspannen vakantie voor jong en oud. Door het ruime aanbod van faciliteiten is er voor ieder wat wils. Een indoor speelwereld (2015), een binnen- en buitenzwembad (2015), een kapsalon, bowlingbaan, kinderanimatie, midgetgolfbanen, kinderboerderij, fietsenverhuur, verscheidene horecagelegenheden en nog veel meer. 

Gramsbergen ligt in een fraaie bosrijke omgeving met veel fiets- en wandelroutes. Tevens zijn er een aantal bezienswaardigheden die de moeite waard zijn, zoals de Mommeriete Brouwerij, Mad Monkey Jungle, de Vijvertuinen, Ponypark City, de Höfke- en Stephaneskerk, Slagharen en het Stedelijk Museum Coevorden.

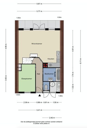
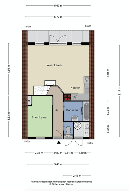
Indeling

U komt via de voordeur aan de achterzijde van de woning binnen in een lange hal met aan de linkerzijde de deur naar de 1e slaapkamer, aan de rechterzijde een deur naar de badkamer, het toilet en aan het einde van de hal de deur naar de sfeervolle woonkamer met openslaande terrasdeuren naar het terras, een sfeervolle (open)haard, de trap naar de verdieping en een open keuken. 

De woonkamer heeft uitzicht over het water en een leuke zit- en eethoek met modern interieur. De open keuken is voorzien van o.a. een koelkast met vriesvak, inductiekookplaat, vaatwasser en ingebouwde combimagnetron. 

Aan de rechterzijde in de hal vindt u de deur naar de badkamer met een ligbad, douche en wastafel en gelijk naast de badkamer bevindt zich het separaat toilet. 

De berging met wasmachine en droger aansluiting en opstelling en de boiler bevindt zich samen met de meterkast aan de achterzijde van de woning en zijn buitenom bereikbaar. De wasmachine en droger behoren ook tot de totale inventaris.

Via de vaste trap in de woonkamer komt u op de 2e verdieping, waar zich 2 ruime slaapkamers bevinden en op de overloop een vaste kast. Alle slaapkamers zijn voorzien van 2 boxspringbedden. Via de slaapkamer aan de noordzijde van de woning heeft u toegang tot het balkon met uitzicht over het water.

Bijzonderheden

*  Deze recreatiebungalow is voorzien van kunststof ramen en deuren met dubbel glas. 
*  De woning wordt verwarmd door middel van elektrische gevel kachels en de open haard dient als sfeer-/bijverwarming. De woning is geheel gasloos.
*  Deze grotendeels gerenoveerde vrijstaande woning wordt geleverd inclusief de complete inventaris. 
*  Het is mogelijk, maar niet verplicht, om de woning te verhuren via het park, andere platformen of geheel in eigen beheer.

Kenmerken